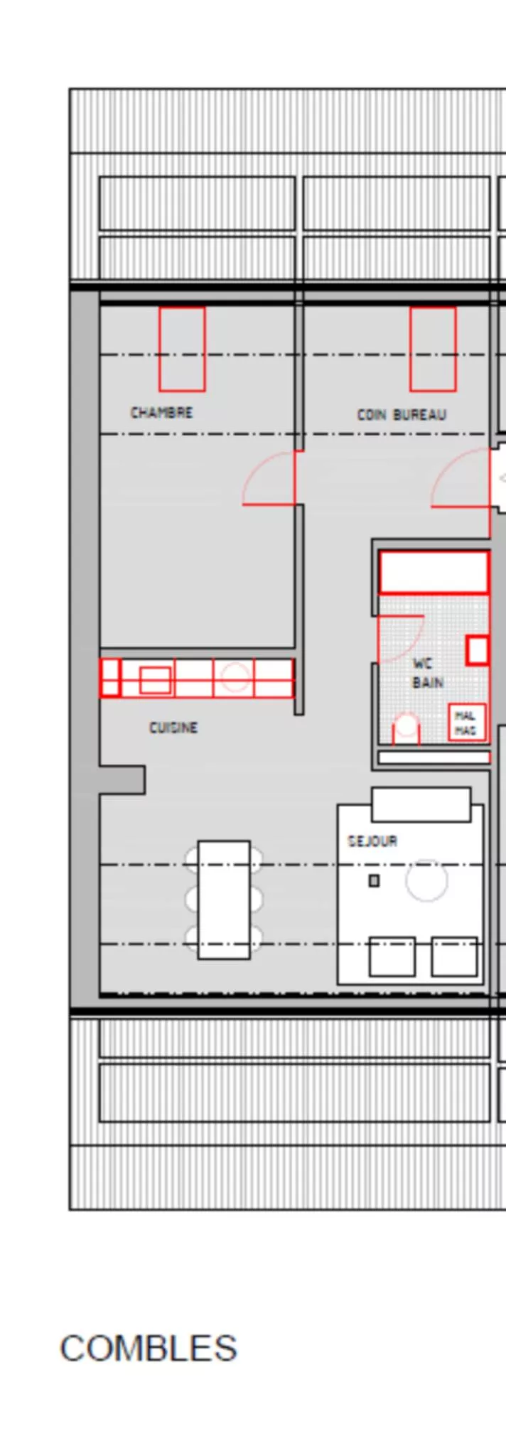
Appartement traversant de 2,5 pièces, bénéficiant d'une belle orientation et d'une belle luminosité.
Rénové avec goût et avec des matériaux contemporain, parquet au sol, entrée avec espace bureau, 1chambres à coucher, 1 salle de bains/WC/colonne de lavage, cuisine ouverte entièrement équipée avec de l'électroménager Siemens, donnant sur le séjour/salle à manger.
1 cave, ainsi qu'une place de parc extérieure à 10'000.- ou un garage box à 20'000.- (en sus du prix de vente).
A visiter absolument !
Technique :
- Immeuble sans ascenseur
- Fenêtres triple vitrage PVC
- Électroménager Siemens
- Chauffage au mazout distribution par radiateurs
Rénové avec goût et avec des matériaux contemporain, parquet au sol, entrée avec espace bureau, 1chambres à coucher, 1 salle de bains/WC/colonne de lavage, cuisine ouverte entièrement équipée avec de l'électroménager Siemens, donnant sur le séjour/salle à manger.
1 cave, ainsi qu'une place de parc extérieure à 10'000.- ou un garage box à 20'000.- (en sus du prix de vente).
A visiter absolument !
Technique :
- Immeuble sans ascenseur
- Fenêtres triple vitrage PVC
- Électroménager Siemens
- Chauffage au mazout distribution par radiateurs
Nombre de pièces et surfaces
Nombre de pièces : 2.5
Surface habitable (m2) : 80
Nombre de chambres : 1
Nombre de salles de bain : 1