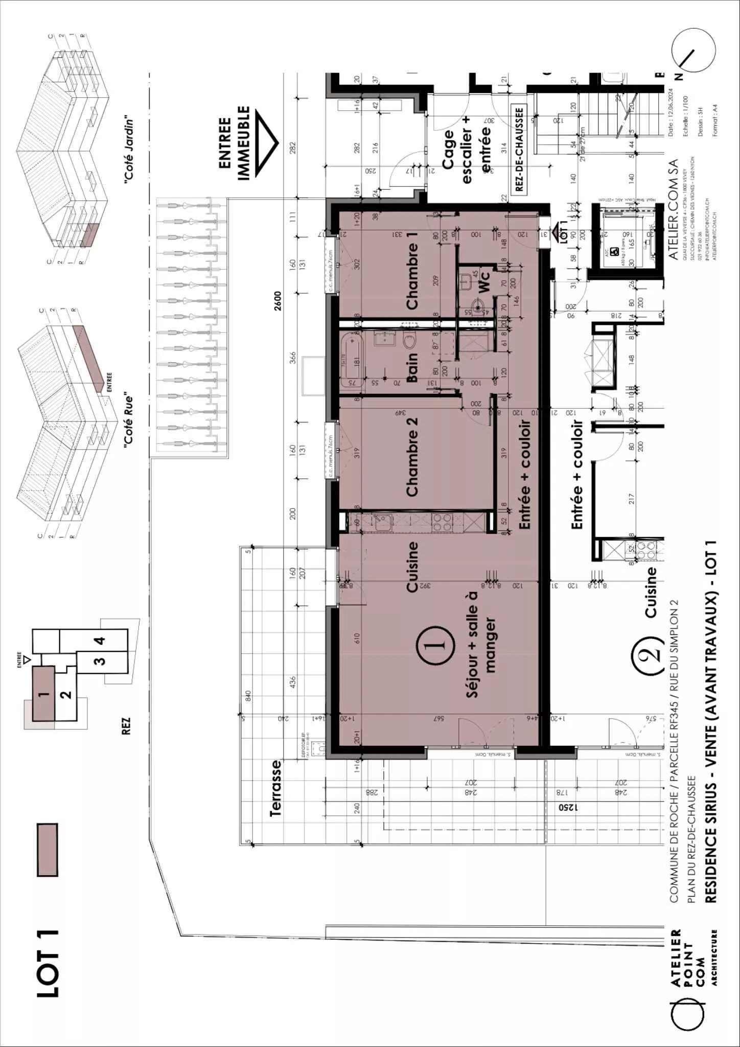
Dans une PPE de 18 appartements, cet appartement de 3.5 pièces au Rez avec jardin d'environ 70 m2 dispose d'une surface habitable de 84 m2 et d'une terrasse de 39 m2.
Il est composé comme suit :
- Hall d'entrée et couloir
- 2 chambres à coucher
- WC visiteurs
- Salle de bains
- Cuisine ouverte
- Séjour/salle à manger accès sur la terrasse
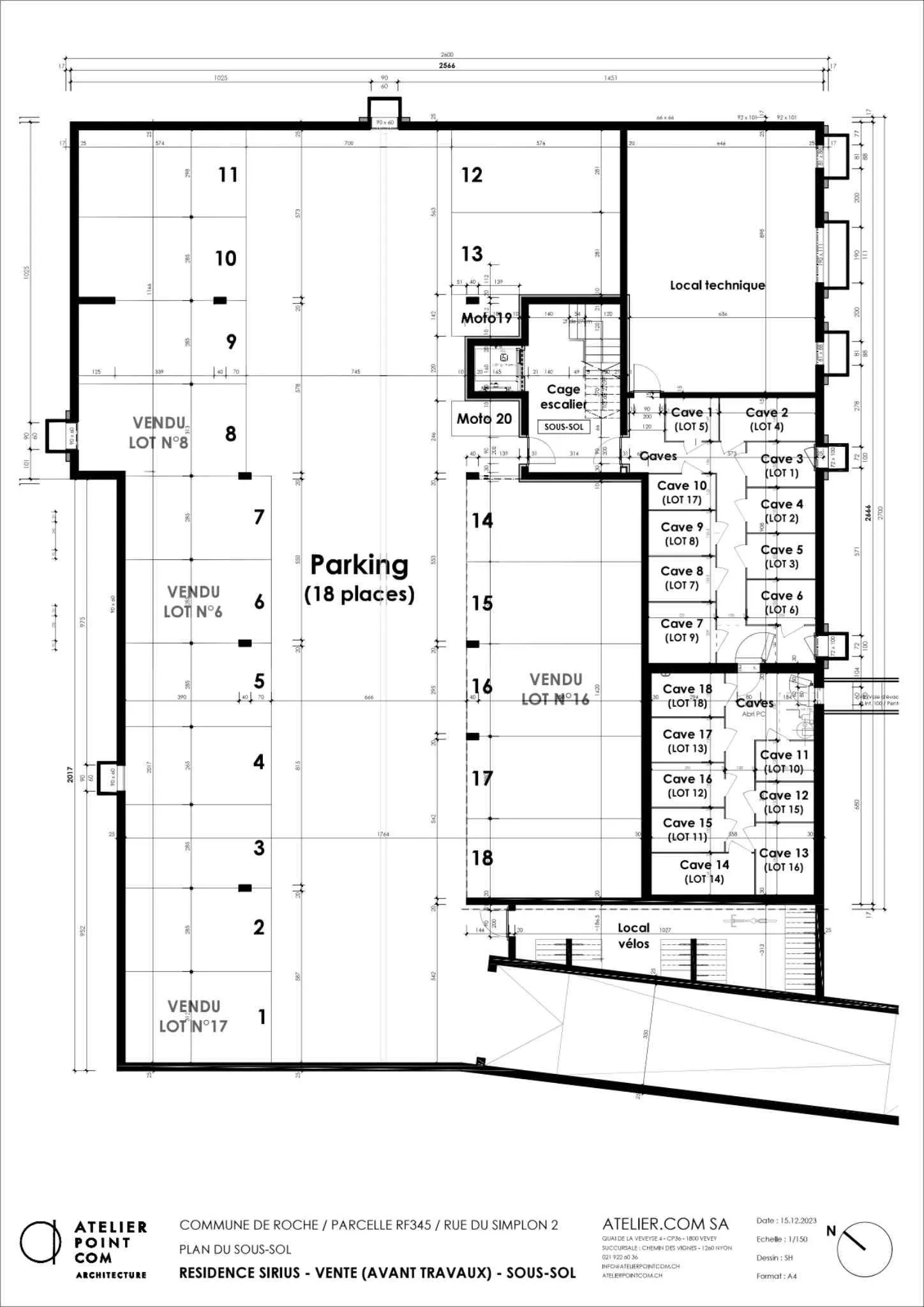
- Cave
Une place de parc intérieure est disponible en sus du prix à 35'000.-
Début des travaux février 2025.
Livraison automne 2026.
Lien vers le site web de la promotion : https://residence-sirius.ch/index.php
Il est composé comme suit :
- Hall d'entrée et couloir
- 2 chambres à coucher
- WC visiteurs
- Salle de bains
- Cuisine ouverte
- Séjour/salle à manger accès sur la terrasse
- Cave
Une place de parc intérieure est disponible en sus du prix à 35'000.-
Début des travaux février 2025.
Livraison automne 2026.
Lien vers le site web de la promotion : https://residence-sirius.ch/index.php
Nombre de pièces et surfaces
Nombre de pièces : 3.5
Surface habitable (m2) : 84
Nombre de chambres : 2
Surface (m2) : 97
Nombre de salles de bain : 2
Données complémentaires
Lot : 1
Année de construction : 2026
Date de disponibilité : 30.09.2026
Liste des lots de cette promotionListe des lots
| Lot | Étage | Pièces | Surface m2 | Prix de vente CHF | Disponibilité |
|---|---|---|---|---|---|
| Attique - | Attique | 2.5 pces | 55 m2 | - | Vendu - réservé |
| Appartement - 1 | 0 | 3.5 pces | 84 m2 | CHF 725'000.- | Disponible |
| Appartement - 11 | 2 | 3.5 pces | 84 m2 | CHF 660'000.- | Disponible |
| Appartement - 12 | 2 | 3.5 pces | 79 m2 | CHF 690'000.- | Disponible |
| Appartement - 13 | 2 | 3.5 pces | 81 m2 | - | Vendu - réservé |
| Appartement - 14 | 2 | 4.5 pces | 108 m2 | CHF 810'000.- | Disponible |
| Dernier étage - 18 | 3.5 pces | 87 m2 | CHF 770'000.- | Disponible | |
| Appartement - 2 | 0 | 3.5 pces | 79 m2 | CHF 730'000.- | Disponible |
| Appartement - 3 | 0 | 3.5 pces | 81 m2 | CHF 735'000.- | Disponible |
| Appartement - 4 | 0 | 4.5 pces | 108 m2 | CHF 840'000.- | Disponible |
| Appartement - 5 | 1 | 2.5 pces | 62 m2 | - | Vendu - réservé |
| Appartement - 7 | 1 | 3.5 pces | 79 m2 | CHF 685'000.- | Disponible |
| Appartement - 9 | 1 | 4.5 pces | 108 m2 | CHF 850'000.- | Disponible |